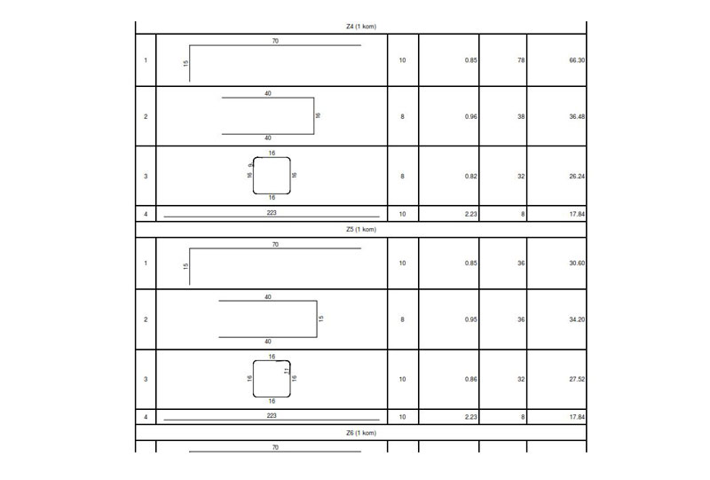
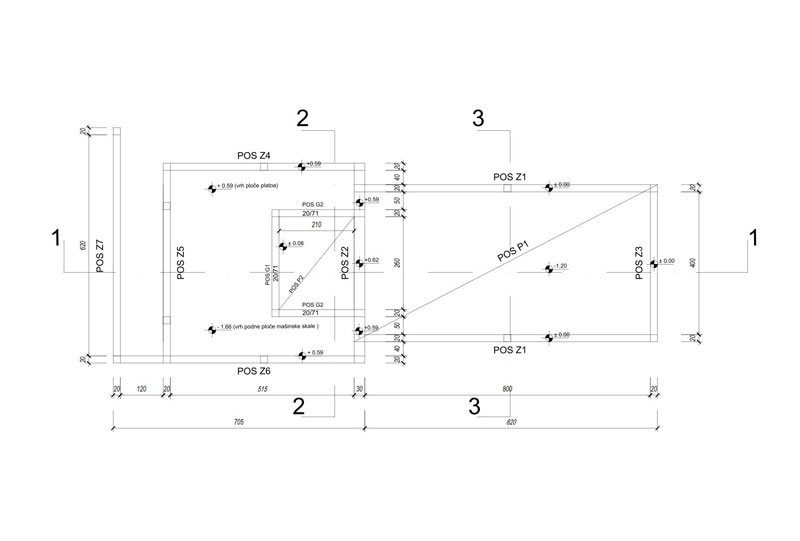
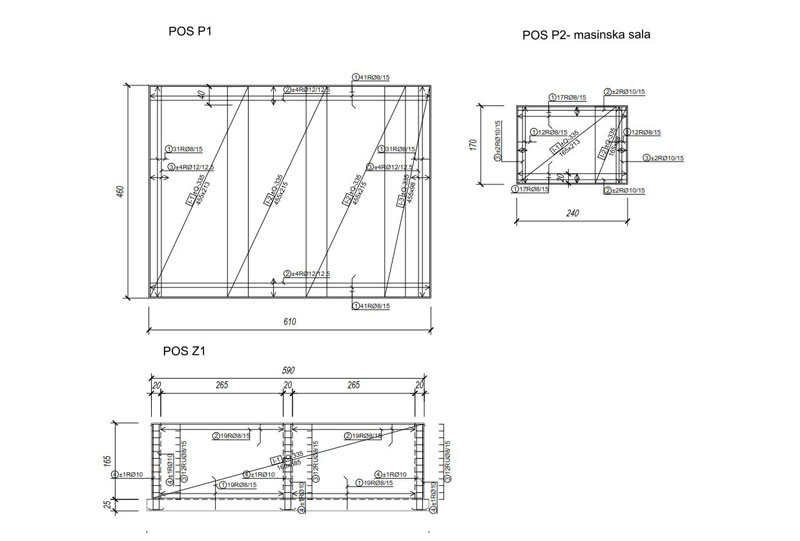
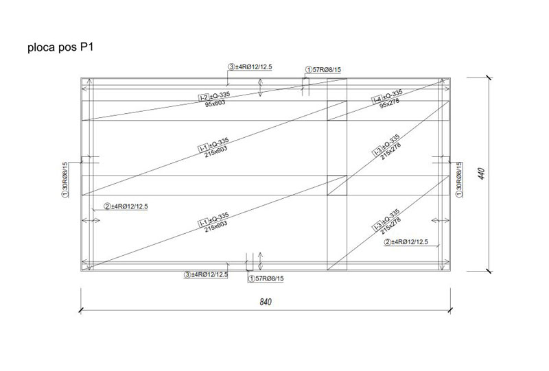
Project Description
Projekat statike skimerskog tipa bazena
- Kategorija: prikaz dela građevinskog projekta – grafički
- Vrsta bazena i dimenzije: skimerski 8m x 4m x 1.20m i skimerski 5,5m x 4 m x 1.5m
- Prikazani delovi: statički model bazena sa kadom u nivou iznad, dispozicija, plan armature, specifikacija armature, statički model sa uticajima
